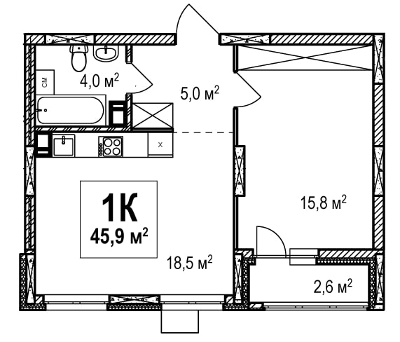
1-комнатная квартира № 266

КОМНАТ

1

ЭТАЖ

0

ПЛОЩАДЬ

46 м²

Узнать цену
Проект ЖК Подкова на Гагарина
Дом Дом № 3Б, Секция 3
Сдача
Отделка Предчистовая
Вид из окна Во двор
8 (831)

телефон отдела продаж

Список квартир