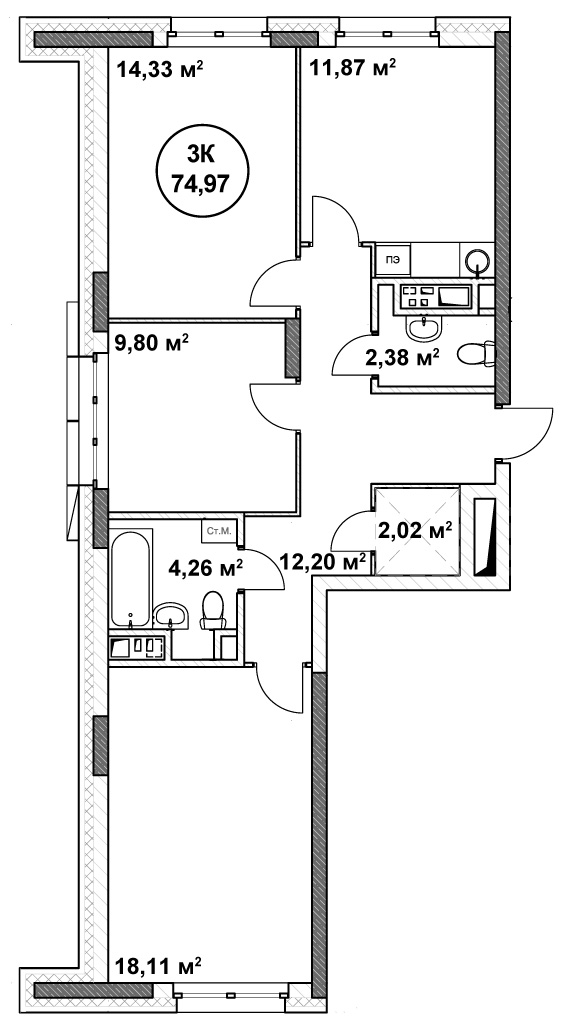
3-комнатная квартира № 114
КОМНАТ
3
ЭТАЖ
15
ПЛОЩАДЬ
74.93 м²
| Проект | ЖК Подкова Новая |
| Дом | Дом. № 1.1, Секция 1 |
| Сдача | |
| Отделка | Предчистовая |
| Вид из окна | Во двор и на улицу |
пн–пт 08:00–20:00
сб. 10:00–19:00
| Проект | ЖК Подкова Новая |
| Дом | Дом. № 1.1, Секция 1 |
| Сдача | |
| Отделка | Предчистовая |
| Вид из окна | Во двор и на улицу |