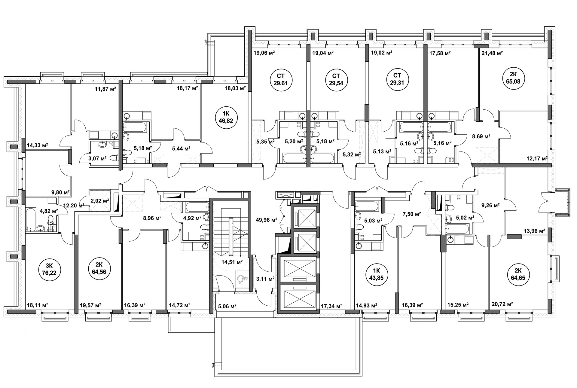
Студия № 6
КОМНАТ
Студия
ЭТАЖ
2
ПЛОЩАДЬ
28.76 м²
| Проект | ЖК Подкова Новая |
| Дом | Дом. № 1.1, Секция 1 |
| Сдача | |
| Отделка | Предчистовая |
| Вид из окна | На улицу |
пн–пт 08:00–20:00
сб. 10:00–19:00
| Проект | ЖК Подкова Новая |
| Дом | Дом. № 1.1, Секция 1 |
| Сдача | |
| Отделка | Предчистовая |
| Вид из окна | На улицу |